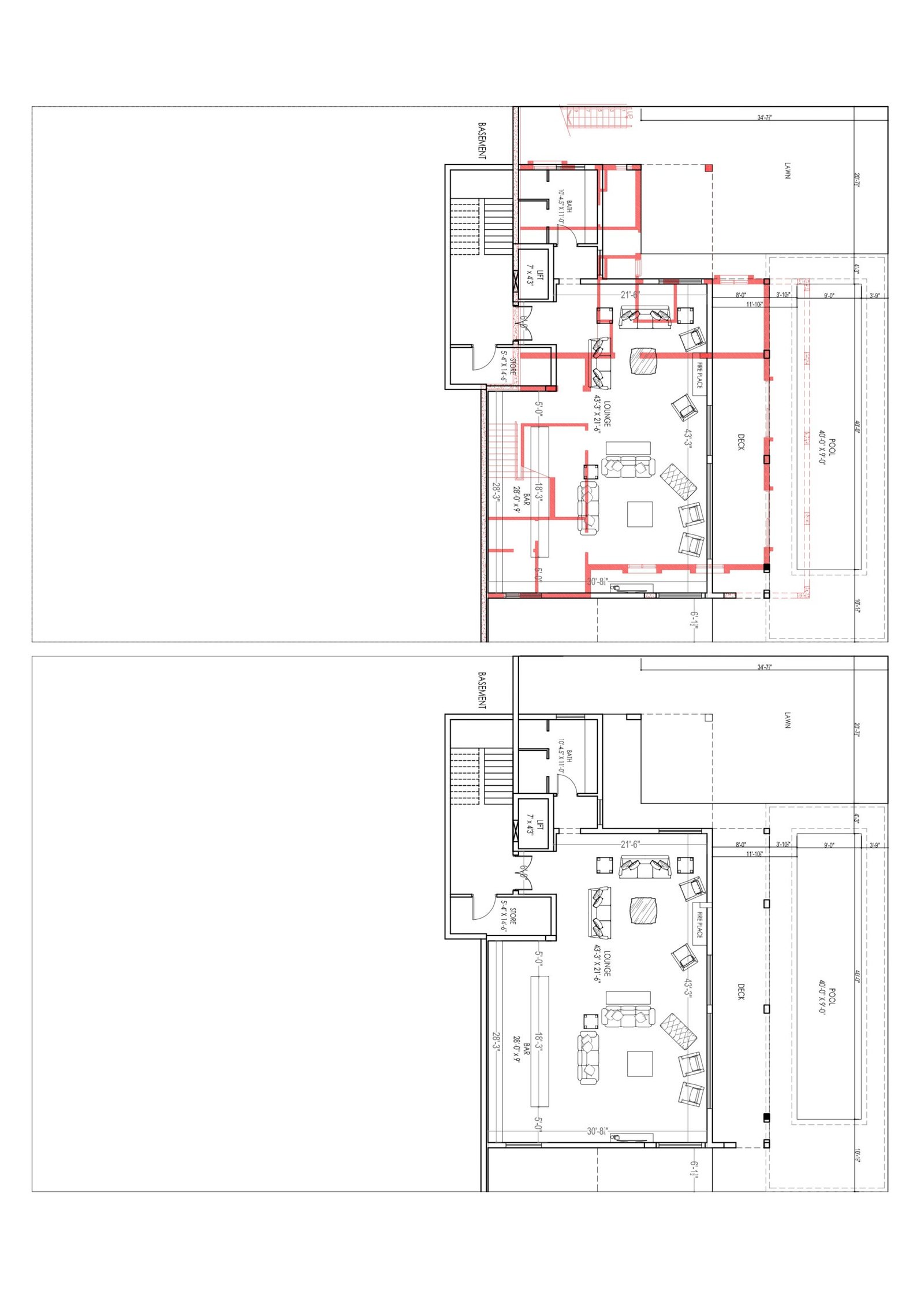
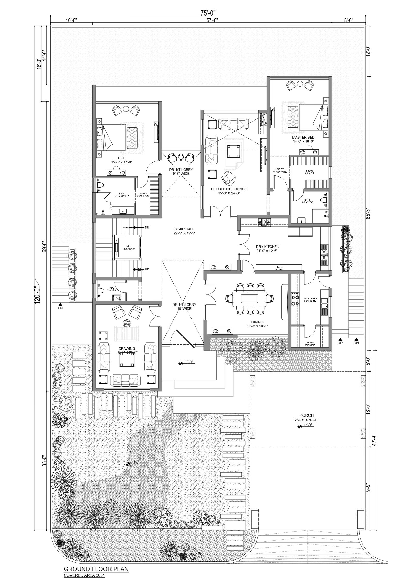
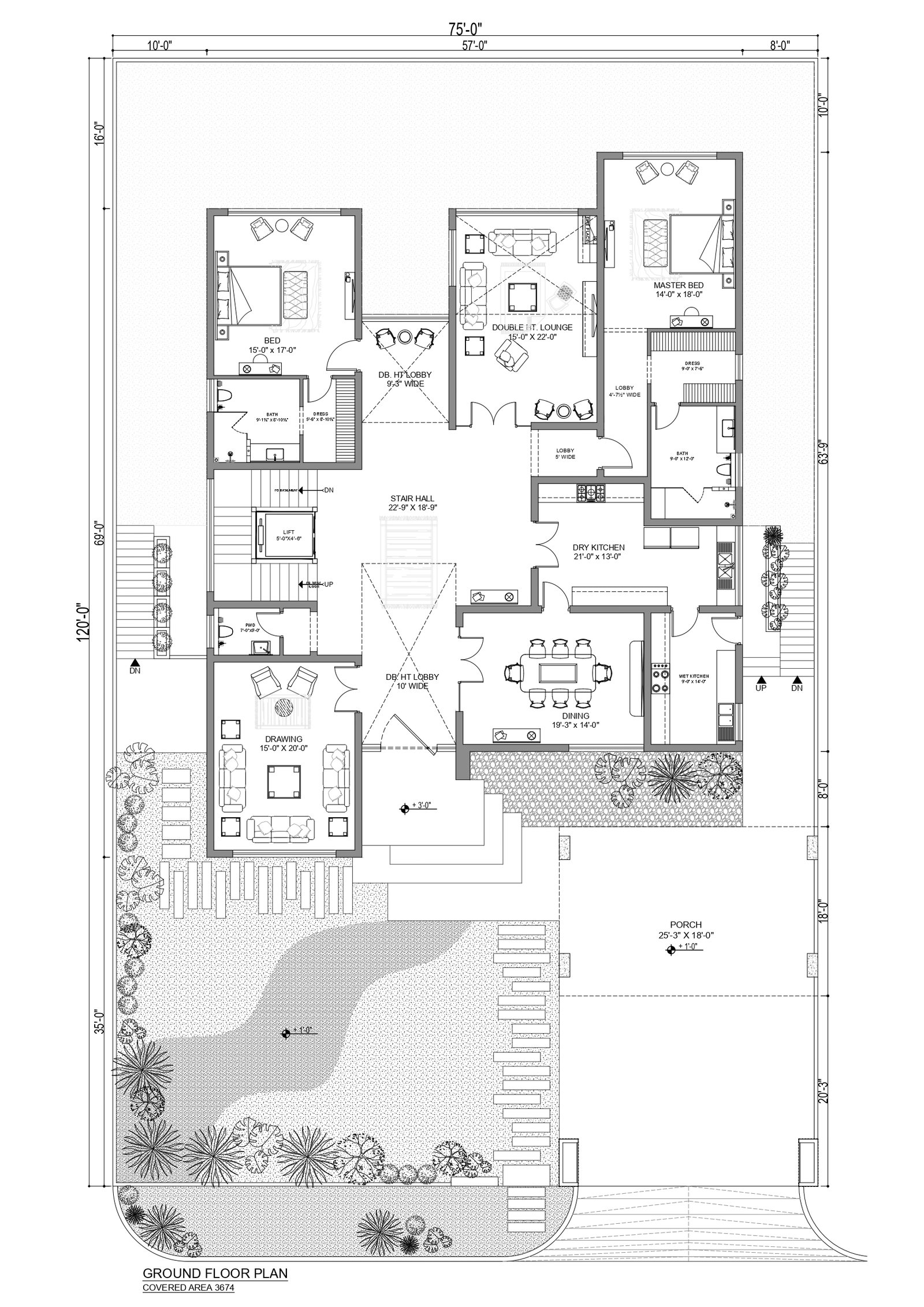
Digitising Drawings

Our portfolio

At Minnaro Interiors Studio, we approach each project with a thoughtful blend of environmental psychology, art, architecture, and cultural insight — all grounded in meticulous project management.